Attraktives Büro in Bahnhofsnähe














Objektbeschreibung
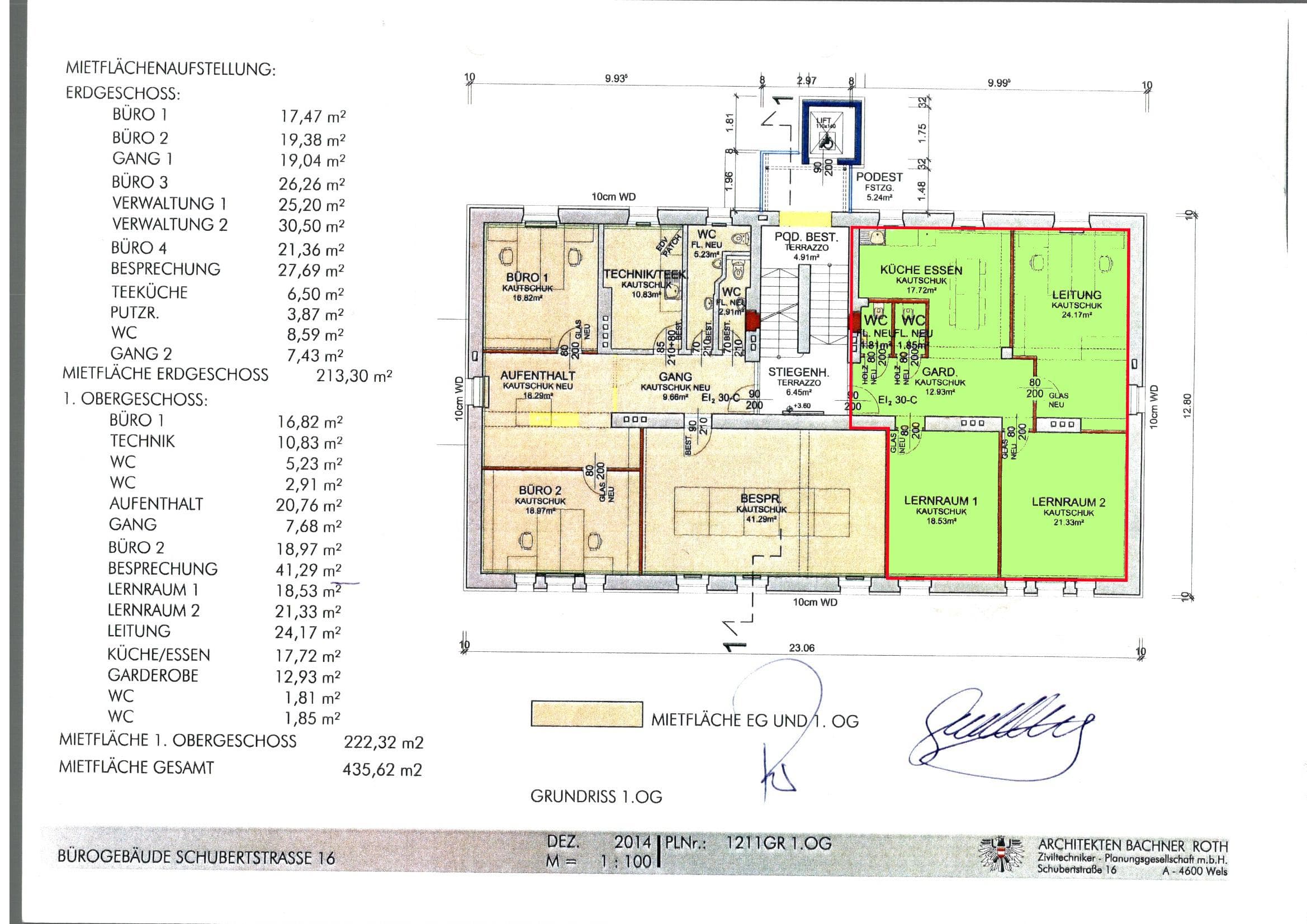
TOP Lage - Bahnhofsnähe - Kostenlose Parkplätze Das Objekt befindet sich in der Schubertstraße in Bahnhofsnähe und sticht mit seiner attraktiven Raumaufteilung hervor. Das 98,34 m² große Büro umfasst 3 Büroräume, einen Besprechungsraum, Küche, 2 separate Toiletten sowie ein Gang mit Garderobe. Mietkosten für die 98,34m² à € 9,37/m² sind € 921,44 zuzüglich Betriebskosten und Heizkosten Akonto von € 265,52 ergeben eine Gesamtbelastung monatlich von € 1.186,96 netto. Flächenaufstellung: Büro 1: 24,17 m² Büro 2: 21,33 m² Büro 3: 18,53 m² Gang: 12,93 m² Küche: 17,24 m² Gesamtfläche: 98,34 m² Es stehen 4 - 5 kostenlose Parkplätze zur Verfügung. Außerhalb der Betriebszeiten sind die Parkplätze abgesperrt, Sie können aber bei Ein- und Ausfahrt elektronisch geöffnet oder geschlossen werden. Mit dem Personenlift kommen Sie und Ihre Kunden bequem in den 1. Stock. Der Bezug ist ab sofort möglich.
Lage
Zentrale Lage in Bahnhofsnähe, guter öffenlticher Verkehrsanschluss.
